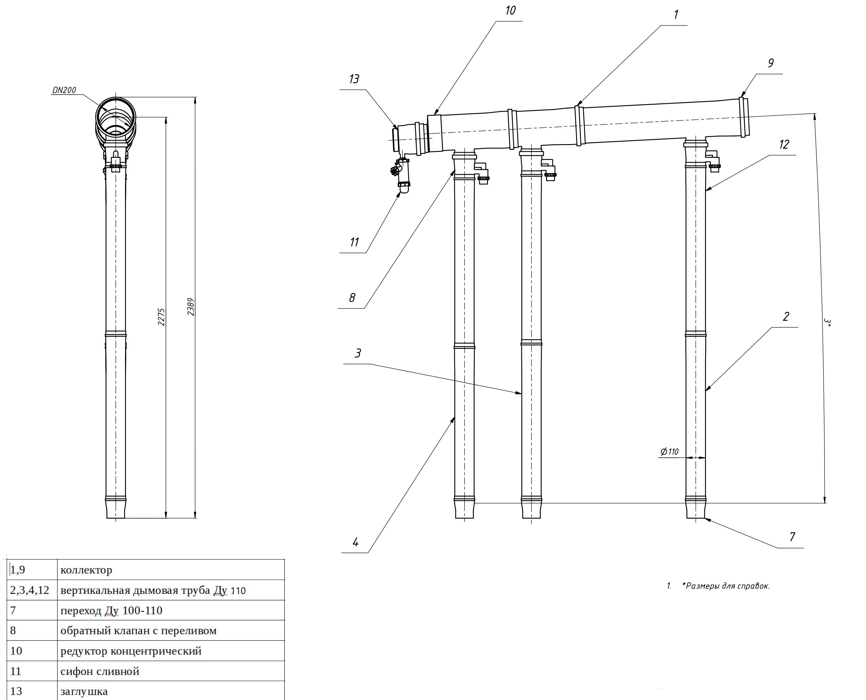
Система дымоудаления для котлов GEFFEN MB 4.1 80 - 99 кВт. Мощность теплогенераторной 240 - 300 кВт
Подключение к коллектору Ду 200 раструб
Подключение для слива конденсата Ду 25
Материал полипропилен. Соответствует действующим европейским правилам EN 483, EN 14471. Класс давления системы Н1/5000 Па. Максимальная температура 110 ºС. Подходит как для влажных так и для сухих дымовых газов. Сифон для слива конденсата включен в комплект поставки. Подключения к котлам оснащены обратным клапаном для предотвращения перетока дымовых газов от работающего котла через неработающий в помещение.
ВАЖНО!
Для продолжения систем дымоудаления могут использоваться стандартные элементы дымоходов из нержавеющей стали диаметром 200 мм.Обратите внимание, что материал дымохода должен быть кислотостойким, например Aisi 304
Комплект каскадных дымоходов для теплогенераторных для 3-х котлов GEFFEN MB 4.1 80 - 99 кВт
Комплект каскадных дымоходов для теплогенераторных для 3-х котлов GEFFEN MB 4.1 80 - 99 кВт
Подробнее
Получить коммерческое предложение
Документация
- 2D Комплект каскадных дымоходов для теплогенераторных для 3-х котлов GEFFEN MB 4_1 80 - 99 кВт
- 3D Комплект каскадных дымоходов для теплогенераторных для 3-х котлов GEFFEN MB 4_1 80 - 99 кВт
- Каталог продукции GEFFEN 2024_
- Комплект каскадных дымоходов для теплогенераторных руководство по монтажу и эксплуатации (11_08_2023)
- Размеры каскадного дымохода для 3-х котлов
- Семейства BIM каскадные дымоходы
Характеристики
| Бренд | GEFFEN |
| Артикул | 05040038 |
| Страна производитель | Россия |
| Максимальная температура | 110 ºС |
| Мощность | 240 - 300 кВт |
| Подключение для слива конденсата | Ду 25 |
| Подключение к коллектору | Ду 200 |
Описание
- Комментарии
Загрузка комментариев...
